保利璟山和煦(石景山·璟山和煦)首页网站丨璟山和煦楼盘详情-价格-户型-配套
扫描到手机,新闻随时看
扫一扫,用手机看文章
更加方便分享给朋友
北京石景山「保利璟山和煦」
售楼处电话:400-809-6780【营销中心】(来电尊享优惠活动)
如有问题欢迎来电咨询,来电即可享受买房优惠!预约来电尊享购房优惠,可约案场内部销售人员,专业一对一热情服务,让您用专业眼光去买房。
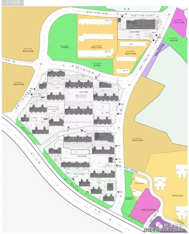
保利以36.2亿拿下的石景山广宁村地块于前几日公布了案名为(保利·璟山和煦售楼处电话:400-8118-334),最近又流出了户型图。
从名字来看,跟朝阳6号线黄渠地铁站北侧的(保利和光煦境)有点像,确实都是“和系‘”的产品,但内容却不同。
璟山和煦售楼处电话:400-809-6780,分为两个地块,整体规划了19栋5-10层的洋房,一梯两户,容积率1.8,绿化率30%。
在售户型为75-135平的两居-四居,主力户型是100平以上的,销售指导价6.2万/平(±8%),总价460-800万左右,开盘会有折扣,单价能到6以下。
毕竟是洋房,所以璟山和煦的园林设计的也颇有意境,经典东方园林景观,并且打造了全龄化的活动空间,休闲、会客、社交等需求均可满足!
户型如下:
73平南北通透两居室,虽然面积不大,但是实用性很强,全洋房,得房率85%左右,此户型不多,得抢。
96平的南向三面宽的三居双卫,全明格局,LDK一体化设计,通透感很好,而且南向三面均有飘窗赠送,刚需改善都可以考虑以下此户型。
103平的边户,所以干脆做成了大边客厅,视野更开阔,南向还有两个卧室,此户型舒适性也是不错的。
113平的三居其实有点类似96三居的放大版,同样都是全明格局,但这个刚改善一些,舒适度更高一些。
136平的四居,四叶草格局,户型很方正,全明,而且这大阳台有点诱人啊,中海学府里的大阳台如果够不上,不如来这儿看看。
北京石景山「保利璟山和煦」
售楼处电话:400-809-6780【营销中心】(来电尊享优惠活动)
如有问题欢迎来电咨询,来电即可享受买房优惠!预约来电尊享购房优惠,可约案场内部销售人员,专业一对一热情服务,让您用专业眼光去买房。
声明:本文由入驻焦点开放平台的作者撰写,除焦点官方账号外,观点仅代表作者本人,不代表焦点立场。
