合生缦云售楼处(欢迎您)合生缦云丨北京合生缦云首页网站丨合生缦云楼盘详情
扫描到手机,新闻随时看
扫一扫,用手机看文章
更加方便分享给朋友
北京丰台「合生缦云」
售楼处热线:400-8118-334【营销中心】(来电尊享优惠活动)
如有问题欢迎来电咨询,来电即可享受买房优惠!预约来电尊享购房优惠,可约案场内部销售人员,专业一对一热情服务,让您用专业眼光去买房。
合生缦云售楼处热线:400-8118-334,位于东三环分钟寺这个豪宅板块,最大的卖点在于:东南三环,而且距离国贸CBD很近。城市发展的脉络清晰可循。板块之间的资源争夺也从未停歇。
分钟寺地处东三环金轴之上,作为北京最后一个先规划后发展的国际化商务区,在1.7平方公里内城珍稀土地上,聚合45万㎡生态绿地及运动公园,建面超50万㎡的高端商业办公,15年教育、医疗等城市核心资源
为了体现对板块的强势看好,合生直接拿出压箱底的产品线——合生·缦系。
这个产品其实本身不需要说太多,因为缦云北京是对于缦系品位的还原和延续,而此前的缦系代表作——缦合·北京
缦云北京以国际WELL认证十大标准与尖端科技、顶级工艺打磨建筑细节,

项目位置:北京市丰台区东三环分钟寺桥、地铁10号线分钟寺站东侧约200米
产品层高:层高3.30米
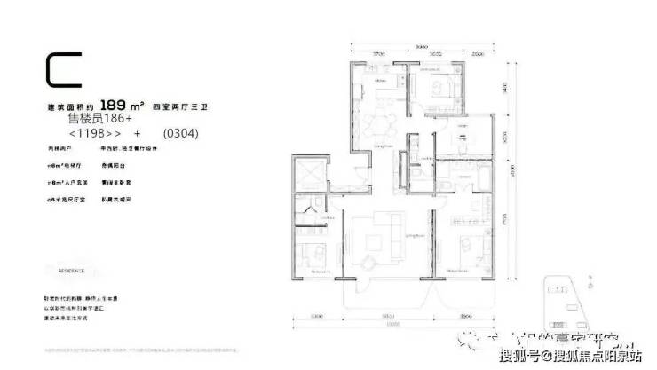
面积区间:189平米南北四居室、198平米南北四居室、222平米南北四居室、251平米到257平米南北五居室

产品单价:12万到13万左右
总价区间:2300万到3341万左右
梯户比例:两梯两户结构
拿地时间:2020年5月份
交房时间:2024年10月份

供水供电:民水民电有燃气
供暖方式:集中供暖:户内采用地板辐射采暖、可自行调节室内温度湿度
车位配比:1:1.8(地下450个)
楼间距:40米到100米
容积率:2.80
得房率:80%
缦云的户型主要是189㎡南北四居,198㎡南北四居 ,222㎡南北四居,251-257㎡南北4+1户型。
北京丰台「合生缦云」
售楼处热线:400-8118-334【营销中心】(来电尊享优惠活动)
如有问题欢迎来电咨询,来电即可享受买房优惠!预约来电尊享购房优惠,可约案场内部销售人员,专业一对一热情服务,让您用专业眼光去买房。
声明:本文由入驻焦点开放平台的作者撰写,除焦点官方账号外,观点仅代表作者本人,不代表焦点立场。
